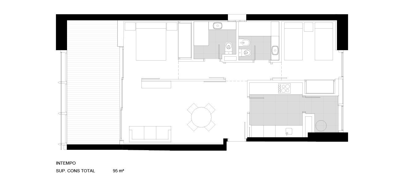
Intempo

Benidorm

2021

Roberto Pérez-Guerras
Arquitecto

Remodelación del edificio de apartamentos más alto de la Comunidad Europea, aportando, en los apartamentos, sus valores, transformando la zona denominada «Diamante», elemento que une las dos torres y optimizando sus zonas comunes, tanto en planta baja como en las plantas 46 – 47 y cubierta.