Nosotros
Valores
Proyectos
Book
Contacto
Nosotros
Valores
Proyectos
Book
Contacto
ES
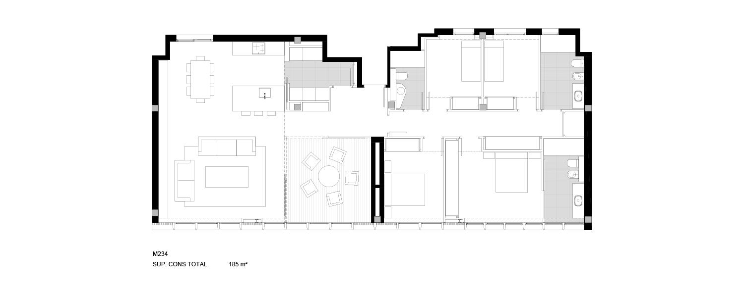
Casa Maury-Parés
Mallorca 234, Barcelona
Joan Pascual
Arquitecto
Proyecto con UNIQ RESIDENTIAL